About The Project

The goal of the program was to renovate an existing dining space and introduce a new, innovative bakery and market concept. Emphasis was placed on ensuring food safety, transparency, and operational efficiency in the planning process. Simple solutions and advanced technology were implemented to reduce labor, mitigate risks and minimize food waste while also bringing excitement through the Bakery concept, enhancing the overall dining experience through the introduction of new venues with a variety of offerings, operating hours, and locations

Publications/ Mentions

Skilled Nursing/ Post-Acute Care

Presented by 
Senior Housing News Architecture & Design Awards

EFA Design Showcase: Finalist

Presented By 

Environments for Aging


Design and Construction Team 

We extend our gratitude to our partners for their collaboration on this project and for enabling us to bring it to fruition!
Click to Visit SCOPOS Website!
SCOPOS Hospitality Group
Food Service Design

Click to Visit Website
Bishop Gadsden
Senior Living Community

Click to Visit Website
RLPS
Architects

Click to Visit Website
Samet Corp Corporation
Construction

SCOPOS 
Food service Design

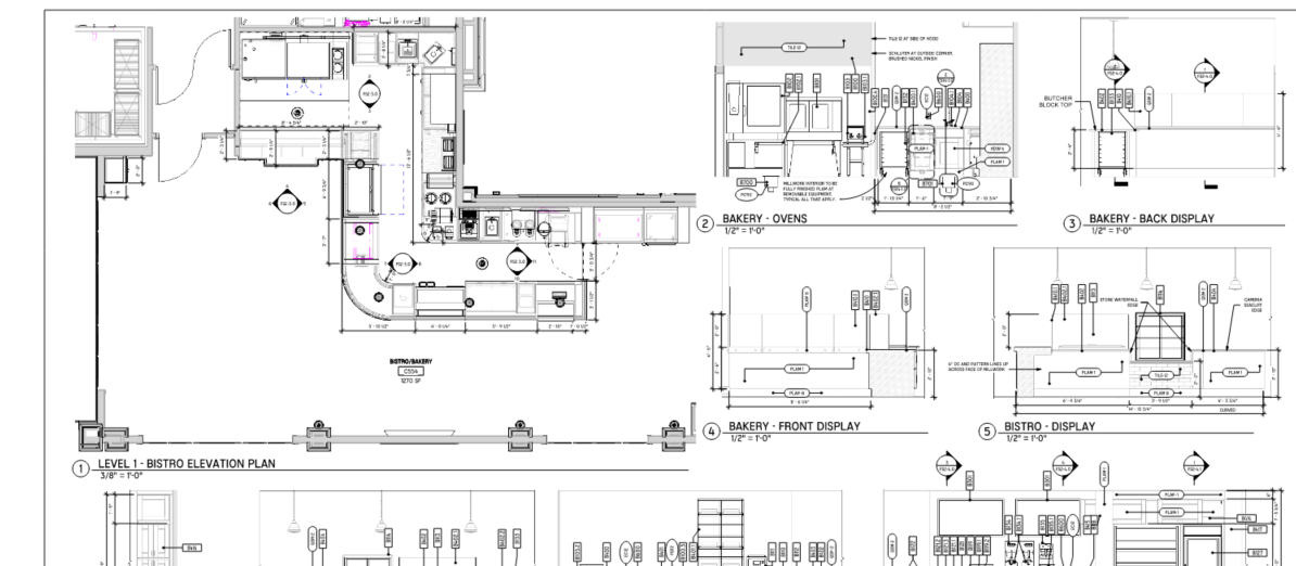
SCOPOS provided Culinary Programming and Food Service Design, working closely with the system leadership and design teams.

Food Service Design Process

Culinary Programming

Space Planning

BIM Modeling & Configuring

Millwork Engineering & Detailing

Mechanical, Plumbing/
Electrical Rough-Ins

Specialty Conditions

Conceptual Renderings

Architecture, Food Service, Interiors & Branding cover critical coordination elements that can often clash and require delicate coordination details. Visualizing them in real-time allows each discipline to cover any potential gaps. The design team used this process to collaborate and communicate concepts to the client.

The Completed Space

Learn More about our services & get connected